お問い合わせCONTACT
住まいに関するお悩みやご相談を、私たちが丁寧にサポートします。
お気軽にご相談ください。
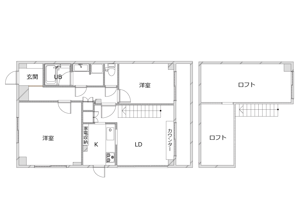
フルリフォームの施工事例築22年(板橋区小豆沢)
人気で流行中のブルックリン風にマンションのリノベーションを行いました。
明るい茶色がメインでキッチンは水色でバスルームは白と統一感のなかったお部屋でしたが、リノベーションで黒を基調とし塗装や建具も黒に統一しブルックリン風に仕上げました。
| 予算 | - | 面積 | 66.26㎡ |
|---|---|---|---|
| リフォーム費用 | 間取り | 2LDK+ロフト | |
| 期間 | 家族構成 | - |



※画像をクリックすると拡大します
住まいに関するお悩みやご相談を、私たちが丁寧にサポートします。
お気軽にご相談ください。