お問い合わせCONTACT
住まいに関するお悩みやご相談を、私たちが丁寧にサポートします。
お気軽にご相談ください。
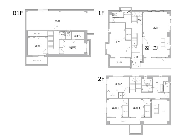
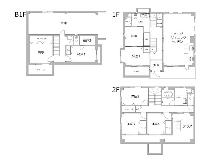
フルリフォームの施工事例築22年(横浜市青葉区柿の木台)
キッチンを対面キッチンに変更し、家族の顔を見ながら調理ができるように。
オープンでありながら、調理中の手元はカウンターでさりげなく目隠し…。
また、白い壁とダークブラウンの床のコントラストが落ち着いた印象の戸建が完成しました。
| 予算 | - | 面積 | 204.83㎡ |
|---|---|---|---|
| リフォーム費用 | 間取り | 6LDK | |
| 期間 | 家族構成 | - |


住まいに関するお悩みやご相談を、私たちが丁寧にサポートします。
お気軽にご相談ください。